Persoonlijk en betrokken
67, Kremersheerd, Beijum-west, Beijum, Oost, Groningen, Nederland, 9737 PK, Nederland







































67, Kremersheerd, Beijum-west, Beijum, Oost, Groningen, Nederland, 9737 PK, Nederland
Instapklare en verduurzaamde hoekwoning met energielabel A, moderne afwerking en vrijstaande berging in Beijum
Ben je op zoek naar een nette, energiezuinige en direct te betrekken woning in Groningen? Dan is deze verzorgde hoekwoning aan de Kremersheerd 67 absoluut een bezichtiging waard. De woning is op belangrijke onderdelen gemoderniseerd en biedt een comfortabel woonniveau dankzij onder meer vloerverwarming op de gehele begane grond, airconditioning, kunststof kozijnen met HR++ glas, 7 zonnepanelen en energielabel A.
Deze eengezinswoning is gelegen in de wijk Beijum en beschikt over een lichte woonkamer, open keuken, twee slaapkamers op de eerste verdieping, een badkamer, een achtertuin en een vrijstaande berging. Met een perceeloppervlakte van 98 m² en een onderhoudsvriendelijke afwerking is dit een ideale woning voor starters, kleine gezinnen of kopers die comfortabel en zorgeloos willen wonen.
De woning is de afgelopen jaren op meerdere punten verbeterd. Zo is de cv-ketel vernieuwd in 2025, is het platte dak vervangen in 2024 en is de kruipruimte geïsoleerd met chips. Op de begane grond ligt een nette PVC-vloer en zowel in de woonkamer als in één van de slaapkamers is airconditioning aanwezig. Dat zorgt niet alleen voor extra comfort in de zomer, maar ook voor een aangenaam binnenklimaat gedurende het hele jaar.
De achtertuin van circa 40 m² biedt een fijne buitenruimte om te zitten en te genieten van rust en privacy. Dankzij de hoekligging profiteer je bovendien van extra lichtinval en een prettige ligging binnen de woonomgeving.
De woning is gelegen in de wijk Beijum, een woonomgeving met diverse voorzieningen op korte afstand. Winkels, scholen, openbaar vervoer, sportvoorzieningen en uitvalswegen zijn goed bereikbaar. Ook het centrum van Groningen is op fietsafstand gelegen.
Een ideale woning voor kopers die op zoek zijn naar een nette, energiezuinige en direct te betrekken woning in Groningen.
Indeling
Begane grond:
Entree/hal met meterkast, toilet en trapopgang naar de eerste verdieping. Aan de voorzijde van de woning bevindt zich de open keuken. De woonkamer is tuingericht, prettig licht en biedt voldoende ruimte voor een comfortabele zit- en eethoek. De gehele begane grond, inclusief hal en toilet, is voorzien van vloerverwarming en afgewerkt met een PVC-vloer.
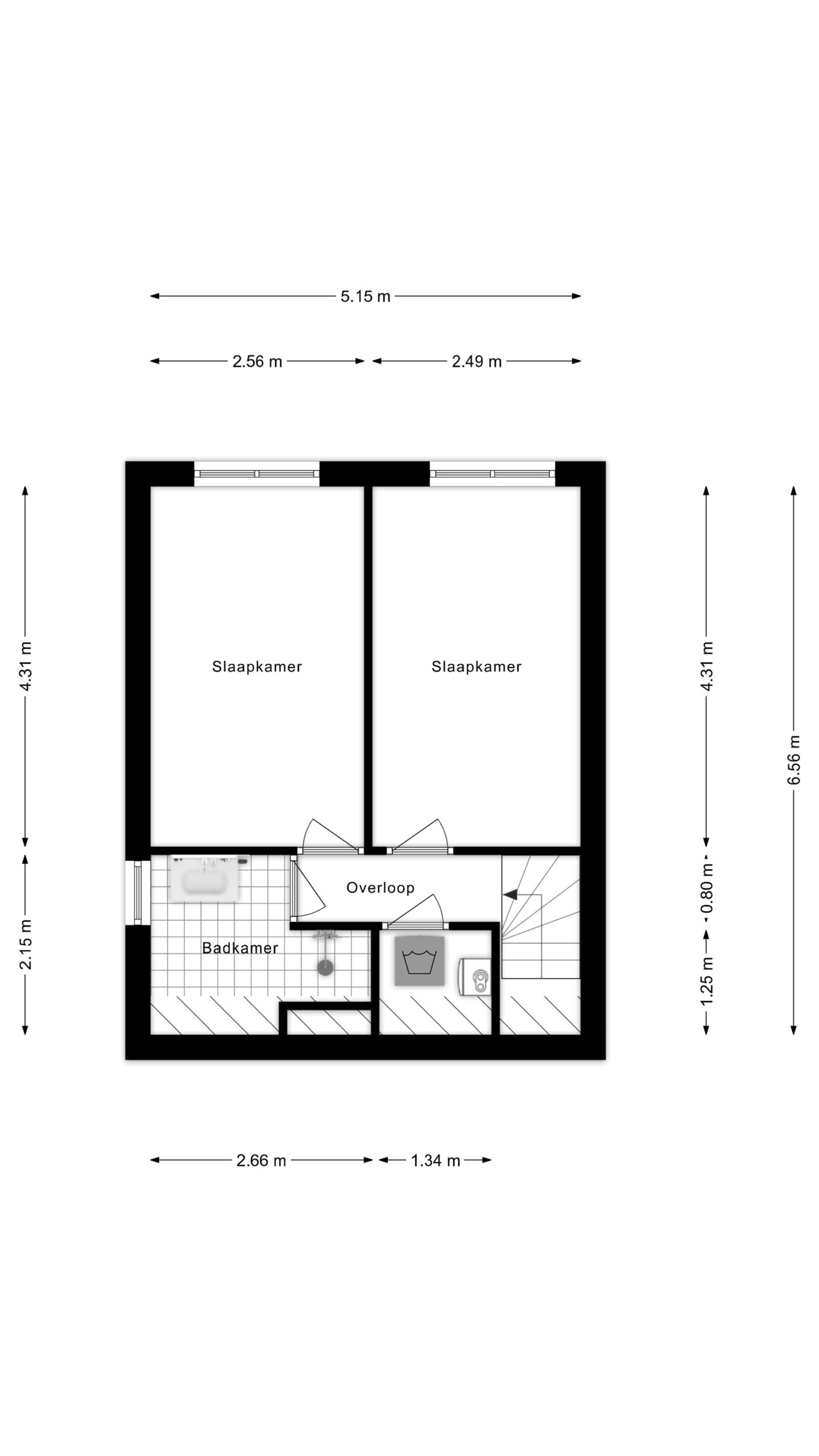
Eerste verdieping:
Overloop met toegang tot twee slaapkamers en de badkamer. De slaapkamers hebben een praktische indeling en goede lichtinval. De badkamer is voorzien van een douche en wastafel. Daarnaast is er een separate ruimte aanwezig voor wasapparatuur en extra bergruimte. Eén slaapkamer beschikt over airconditioning.
Buitenruimte:
De woning beschikt over een achtertuin van circa 40 m². Daarnaast is er een vrijstaande berging aanwezig van circa 6 m², ideaal voor fietsen, gereedschap en extra opslag.
Ligging
De woning is gelegen in de wijk Beijum, een woonomgeving met diverse voorzieningen op korte afstand. Winkels, scholen, openbaar vervoer, sportvoorzieningen en uitvalswegen zijn goed bereikbaar. Ook het centrum van Groningen is op fietsafstand gelegen.
Bijzonderheden
Deze site gebruikt functionele cookies en externe scripts om je beleving te verbeteren.
Privacyinstellingen
Wij maken gebruik van cookies.
Op onze website maken wij gebruik van cookies. Cookies zijn kleine tekstbestanden die door onze website op uw PC, tablet of mobiele telefoon worden geplaatst. Het gaat hier om zgn. functionele of analytische cookies. Deze cookies worden gebruikt om ons te helpen onze website beter te laten functioneren en het gebruik van onze website te kunnen analyseren.
Waar wij u op onze website om uw gegevens vragen, is dat om een vraag goed te kunnen beantwoorden, of omdat u zich aanmeldt voor een specifieke dienst of service. Deze gegevens gebruiken wij uitsluitend intern en worden niet gedeeld met derden. Het gaat bijvoorbeeld om de volgende gegevens:
de browser die wordt gebruikt (zoals Internet Explorer, Chrome of Firefox)
het tijdstip en de duur van de bezoeken
foutmeldingen die bezoekers hebben gekregen.
Dankzij deze cookies kunnen wij soms ook bepaalde formulieren gelijk al voor u ingevuld klaar zetten.
Op onze website maken wij soms ook gebruik van tracking cookies. Zij stellen ons in staat bij te houden welke pagina’s u op onze website bezoekt. Daardoor kunnen wij u aanbiedingen doen waarvan wij verwachten dat die voor u interessant kunnen zijn.
Opmerking: Deze instellingen zijn alleen geldig voor de browser en het apparaat dat je nu gebruikt.
Google Analytics
Google Analytics is een dienst van Google om statistieken van een website verzamelen en deze gedetailleerd weer te geven. Het doel is om de websitebeheerder een duidelijk beeld te geven van onder andere de bezoekersstromen, verkeersbronnen en paginaweergaves.