Persoonlijk en betrokken
6, Puccinistraat, Holtenbroek, Zwolle, Overijssel, Nederland, 8031 TN, Nederland








































6, Puccinistraat, Holtenbroek, Zwolle, Overijssel, Nederland, 8031 TN, Nederland
Hoekwoning met energielabel A+ in Zwolle – Puccinistraat 6
Bent u op zoek naar een comfortabele en energiezuinige woning in een rustige, groene wijk? Dan is deze hoekwoning aan de Puccinistraat 6 in Holtenbroek precies wat u zoekt.
Wonen in Holtenbroek
Holtenbroek is een levendige en veelzijdige wijk waar jong en oud zich thuis voelt. In de directe omgeving vindt u een breed scala aan voorzieningen: van winkels en scholen tot sportfaciliteiten en prachtige groene parken. Toch ligt de gezellige binnenstad van Zwolle en de rustgevende oevers van de IJssel op slechts enkele minuten afstand, perfect voor een ontspannen wandeling of een dagje uit. Kortom, een buurt waar comfort, gemak en plezier hand in hand gaan.
Deze in 1996 gebouwde eengezinswoning biedt volop ruimte en gemak. Dankzij het energielabel A+ geniet u van lage energiekosten en een duurzaam wooncomfort. De woning is gelegen op een perceel van 134 m² en beschikt over een fijne achtertuin, waar u in alle rust kunt ontspannen of gezellig kunt genieten met familie en vrienden.
Kortom: een ideale woning voor wie comfortabel en duurzaam wil wonen in een prettige woonomgeving, dicht bij alles wat Zwolle te bieden heeft.
Indeling van de woning
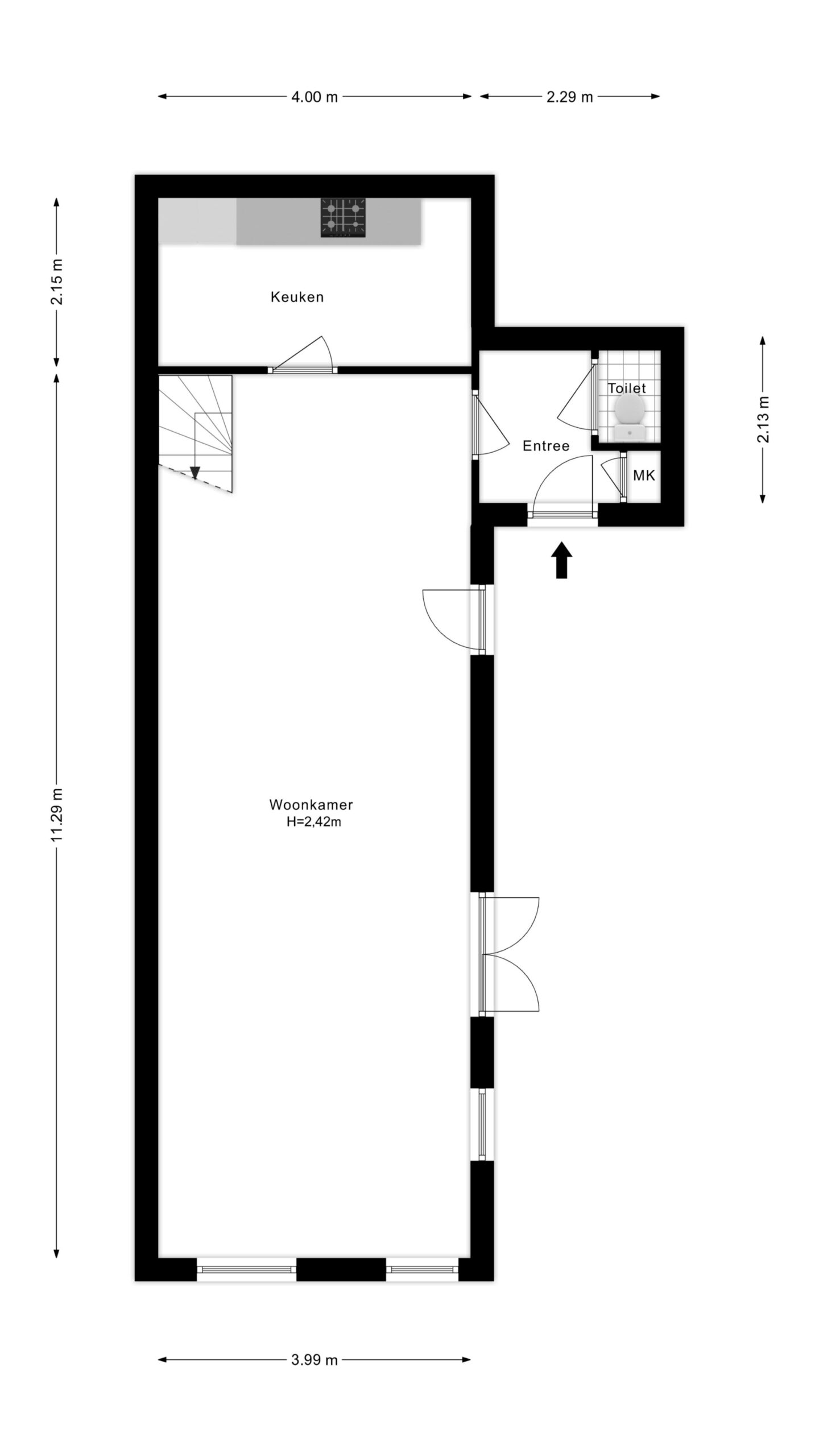
Begane grond
Bij binnenkomst tref je de hal met meterkast en separaat toilet. Vervolgens kom je in de lichte woonkamer met open keuken en toegang tot de tuin.
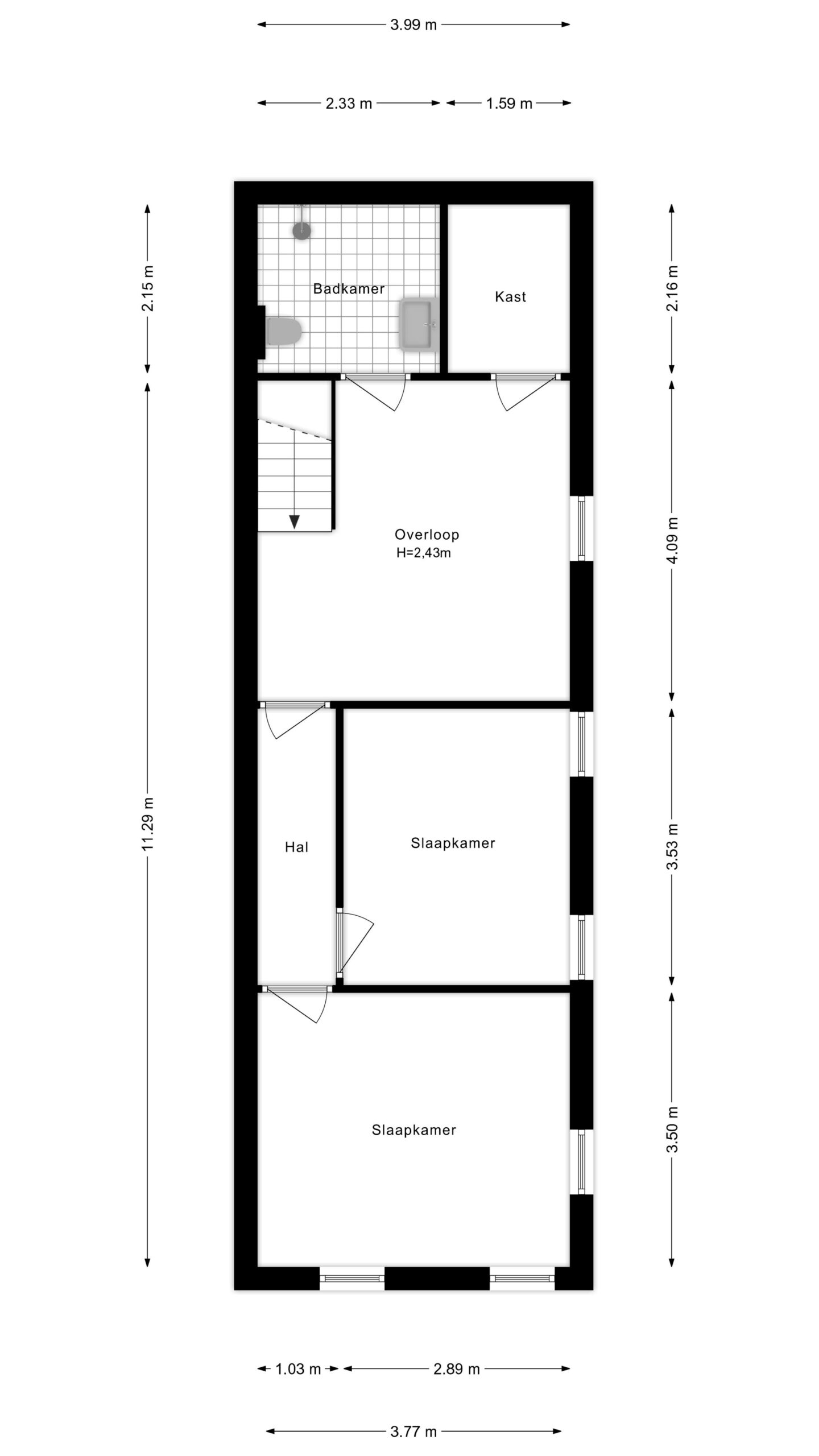
Eerste verdieping
Ruime overloop met toegang tot twee royale slaapkamers, de badkamer en een stookruimte met wasmachineaansluting.
Tuin
Besloten achtertuin met veel privacy.
Pluspunten van deze woning:
Office: 085 0805 790
Mobile: 0681903481
Fax: 084-83 92 727
WhatsApp: 0681903481
Email: koemar@kgmakelaars.nl
Karimunstraat 24, 3089 SM ROTTERDAM
Deze site gebruikt functionele cookies en externe scripts om je beleving te verbeteren.
Privacyinstellingen
Wij maken gebruik van cookies.
Op onze website maken wij gebruik van cookies. Cookies zijn kleine tekstbestanden die door onze website op uw PC, tablet of mobiele telefoon worden geplaatst. Het gaat hier om zgn. functionele of analytische cookies. Deze cookies worden gebruikt om ons te helpen onze website beter te laten functioneren en het gebruik van onze website te kunnen analyseren.
Waar wij u op onze website om uw gegevens vragen, is dat om een vraag goed te kunnen beantwoorden, of omdat u zich aanmeldt voor een specifieke dienst of service. Deze gegevens gebruiken wij uitsluitend intern en worden niet gedeeld met derden. Het gaat bijvoorbeeld om de volgende gegevens:
de browser die wordt gebruikt (zoals Internet Explorer, Chrome of Firefox)
het tijdstip en de duur van de bezoeken
foutmeldingen die bezoekers hebben gekregen.
Dankzij deze cookies kunnen wij soms ook bepaalde formulieren gelijk al voor u ingevuld klaar zetten.
Op onze website maken wij soms ook gebruik van tracking cookies. Zij stellen ons in staat bij te houden welke pagina’s u op onze website bezoekt. Daardoor kunnen wij u aanbiedingen doen waarvan wij verwachten dat die voor u interessant kunnen zijn.
Opmerking: Deze instellingen zijn alleen geldig voor de browser en het apparaat dat je nu gebruikt.
Google Analytics
Google Analytics is een dienst van Google om statistieken van een website verzamelen en deze gedetailleerd weer te geven. Het doel is om de websitebeheerder een duidelijk beeld te geven van onder andere de bezoekersstromen, verkeersbronnen en paginaweergaves.